Client
DTZ Investors

Area Measurement Survey
Units 18, 19 & 20
Uxbridge Trade City, UB8 2DB
Area Measurement Survey Report
Sterling Temple is pleased to present this comprehensive area measurement report for Units 18, 19 & 20 at Uxbridge Trade City. Using advanced 3D laser scanning technology, we have delivered precise gross internal area calculations to support your property planning, valuation, and compliance requirements.
About the Property
Uxbridge Trade City presents modern, multi-unit steel portal frame industrial buildings. Units 18, 19, and 20 feature insulated composite panel cladding and low-pitch roofs with translucent lights.
Each unit possesses a power-floated concrete floor slab in the warehouse, high clear heights, and electrically operated sectional loading doors. Integrated two-storey office accommodation includes suspended ceilings, carpeted floors, and comfort cooling, consistent across all three units.
On the day of the survey, all units were vacant, providing an ideal environment for accurate measurements with no obstacles or restrictions.
Property Details
Property Gallery






Schedule of Areas
Area measurements for Units 18, 19 & 20 at Uxbridge Trade City.
Gross Internal Area (GIA)
| Unit | Ground Level | Mezzanine | Total GIA |
|---|---|---|---|
| Unit 18 | 339.5 sqm / 3,654 sq ft | 58.9 sqm / 634 sq ft | 398.4 sqm / 4,288 sq ft |
| Unit 19 | 280.0 sqm / 3,014 sq ft | 46.8 sqm / 504 sq ft | 326.8 sqm / 3,518 sq ft |
| Unit 20 | 280.4 sqm / 3,018 sq ft | 46.6 sqm / 502 sq ft | 327.0 sqm / 3,520 sq ft |
| Total | 899.9 sqm / 9,686 sq ft | 152.3 sqm / 1,640 sq ft | 1,052.2 sqm / 11,326 sq ft |
Gross External Area (GEA)
| Unit | Ground Level | Mezzanine | Total GEA |
|---|---|---|---|
| Unit 18 | 359.4 sqm / 3,869 sq ft | 69.3 sqm / 746 sq ft | 428.7 sqm / 4,615 sq ft |
| Unit 19 | 300.4 sqm / 3,234 sq ft | 56.7 sqm / 610 sq ft | 357.1 sqm / 3,844 sq ft |
| Unit 20 | 303.4 sqm / 3,266 sq ft | 56.4 sqm / 607 sq ft | 359.8 sqm / 3,873 sq ft |
| Total | 963.2 sqm / 10,369 sq ft | 182.4 sqm / 1,963 sq ft | 1,145.6 sqm / 12,332 sq ft |
Floor Plans
Illustrated floor plans showing the gross internal area for each unit at ground and mezzanine levels.
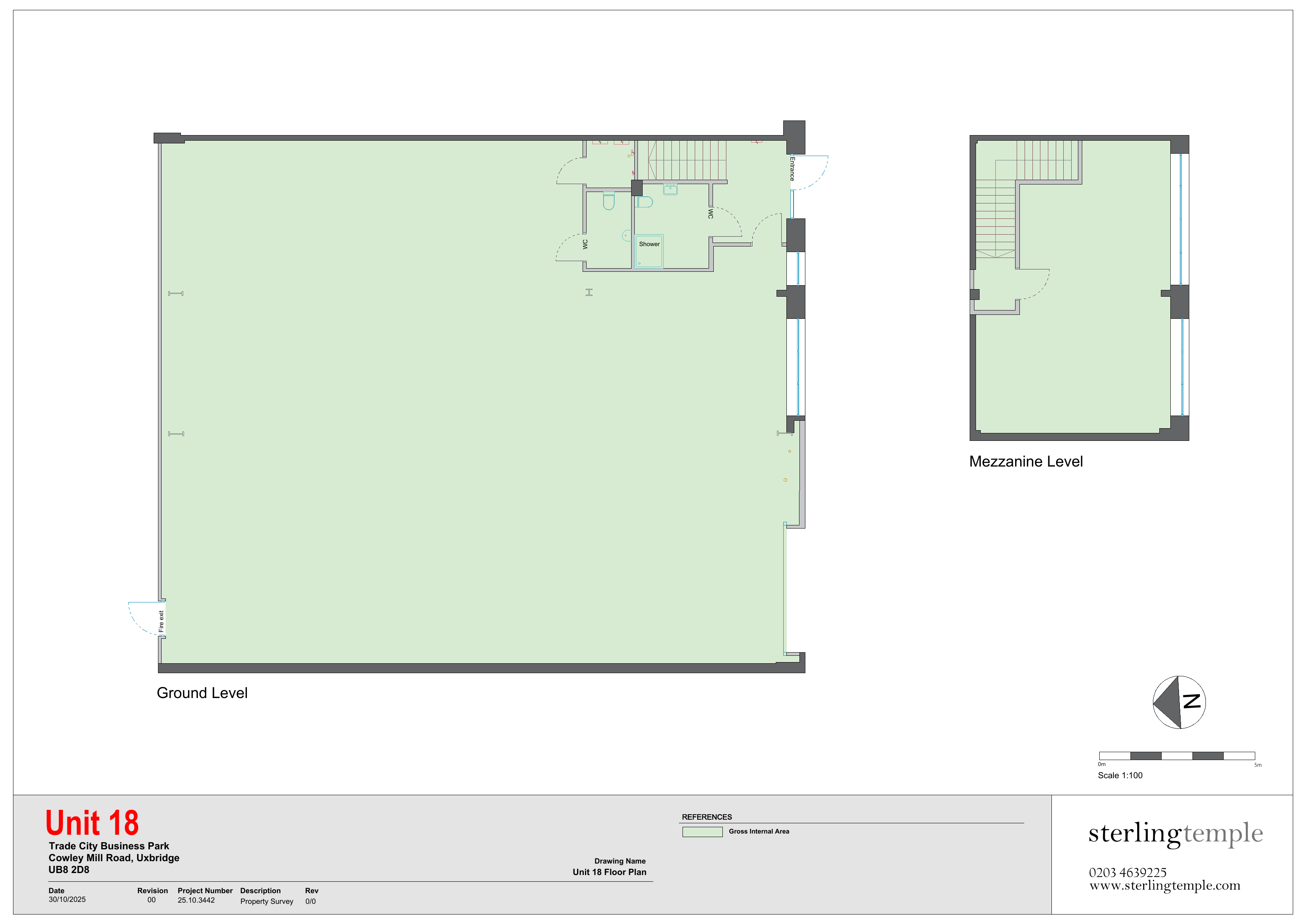
Unit 18 Floor Plan
Total GIA: 398.4 sqm / 4,288 sq ft

Unit 19 Floor Plan
Total GIA: 326.8 sqm / 3,518 sq ft

Unit 20 Floor Plan
Total GIA: 327.0 sqm / 3,520 sq ft

Scope of Work
3D Laser Scanning
Comprehensive 3D laser scan of all three units across both ground and mezzanine levels, capturing precise spatial data for accurate area calculations.
Illustrated Floor Plans
Detailed as-built floor plans for each unit, clearly illustrating the measured areas and spatial configuration of the property.
Area Schedule
Comprehensive schedule of areas calculated in accordance with RICS/IPMS standards, providing GIA measurements for all surveyed spaces.
Deliverables
Survey & Delivery Process

Our survey team attended the property with state-of-the-art 3D laser scanning equipment. This non-invasive technology captures millions of precise measurements, creating a detailed digital record of the building's internal spaces.
The scanning process is quiet and unobtrusive, allowing normal building operations to continue during the survey. Our experienced surveyors coordinated access to all areas, ensuring comprehensive coverage of all three units.
Following the site survey, our technical team processed the scan data and prepared the area measurement report, including illustrated floor plans and a detailed schedule of areas calculated to RICS/IPMS standards.
Survey Date
22 October 2025
Start Time
10:00 AM
Survey Duration
One day on site
Report Delivery
30 October 2025
Site Location
Uxbridge Trade City, Cowley Mill Road, Uxbridge, UB8 2DB
Our Other Services
In addition to measured surveying and area measurement, Sterling Temple offers a comprehensive range of property documentation services to support your requirements.
Visualisations
High-quality 3D visualisations and renders to showcase property potential and support marketing efforts.
Lease Plans
Land Registry compliant lease plans for property registration requirements, ensuring smooth transactions.
Virtual Tours
Immersive Matterport virtual tours for remote property viewing, marketing, and asset management.
Aerial Photography
Professional drone photography and videography for comprehensive site documentation and marketing.
Summary
This report provides a comprehensive overview of the area measurement survey conducted at Uxbridge Trade City, Uxbridge. Our team has delivered precise calculations for the gross internal areas, supported by detailed floor plans and survey notes.
The property was surveyed under optimal conditions, ensuring accuracy and reliability in the results. We are confident that the data and insights provided in this report will support your property planning, valuation, and compliance needs.
Should you require any further information or additional services, please do not hesitate to contact us. Thank you for choosing Sterling Temple for your measured surveying requirements.
